Cordginano - Rustico in pietra
Italiano
134.000 €

Cordginano - Rustico in pietra

Rustico/Casale in vendita • Cordignano (Villa di Villa) - via Laura Cornaro, 2
Dove i sogni prendono forma dalla pietra viva

A pochi passi da Sarmede, il paese delle fiabe, esiste un luogo che aspetta solo di essere risvegliato. Un antico fabbricato rurale, con le sue pietre che raccontano il tempo e i suoi spazi aperti sul verde, offre l’occasione di dar vita a un sogno. Che sia una casa incantata, un rifugio creativo o un bed & breakfast dal sapore autentico, qui puoi immaginare, progettare e realizzare.

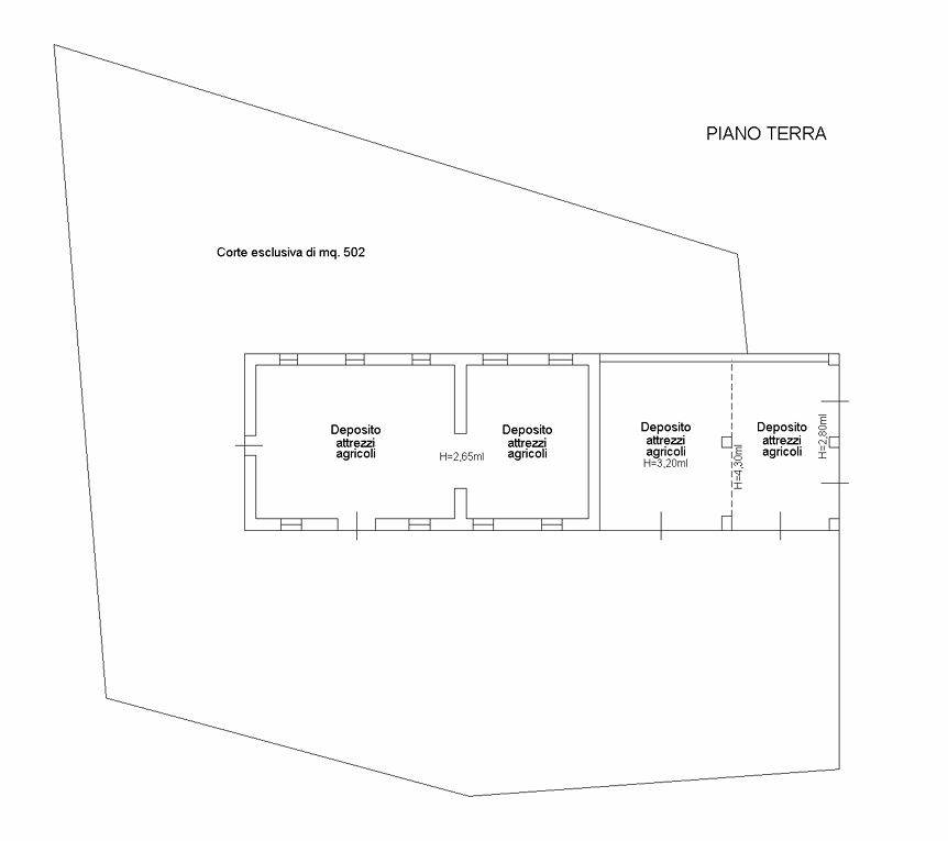
La struttura è oggi accatastata come magazzino, ma ha un’anima che parla già di futuro. Il fascino rustico, il contesto riservato e il terreno circostante la rendono perfetta per chi desidera creare un luogo che accolga storie, persone, esperienze.

Sarmede è lì, vicinissima, con i suoi murales, i suoi racconti, la sua atmosfera magica. E proprio come le fiabe, anche questa casa aspetta qualcuno che le dia nuova vita.

Rif. V001517

*Per tutelare la privacy del proprietario, l’indirizzo indicato potrebbe non corrispondere esattamente alla posizione dell’immobile, ma trovarsi nelle immediate vicinanze ed usufruire degli stessi servizi.
Caratteristiche principali
Codice
V001517
Città
Cordignano (Villa di Villa)
Categoria
Rustico/Casale
Prezzo
134.000 €
Locali
1
Mq
240
Classe energetica
Non classificabile
Stato Immobile
Da Ristrutturare
Posizione
Collina
Panorama
Vista Aperta
Orientamento
Nord Ovest Sud Est
Lati Liberi
4
Giardino
Privato
Mappa
via Laura Cornaro 2, Cordignano (TV)
Video
Condividi su
Cookie preference