Bifamiliare a Conegliano
Italiano
554.000 €

Bifamiliare a Conegliano

Villa Bifamiliare in vendita • Conegliano - Via Dina
Cercate una Bifamiliare a Conegliano che offra l'eccellenza di una Nuova Costruzione? Abbiamo selezionato per voi un'opportunità unica: una moderna villa con ingresso totalmente indipendente e un ampio giardino privato di 290 mq. Ideale per chi desidera il massimo dell'efficienza energetica e spazi luminosi.

Questa splendida casa con giardino privato a Conegliano è stata progettata per garantire comfort e funzionalità su due livelli.

Piano Terra: Spazio e Funzionalità
L'accesso è riservato tramite ingresso indipendente. Il piano terra si apre su una grande zona giorno open space, il cuore della casa, perfetta per accogliere amici e familiari. La disposizione include un pratico bagno per gli ospiti e uno studio dedicato, essenziale per il lavoro da casa o come stanza hobby. La comodità è completata da un garage integrato al piano terra.

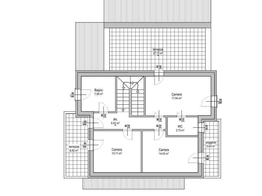
Primo Piano: Comfort e Terrazze Private
La zona notte è un vero rifugio di privacy. Troviamo la camera padronale che si affaccia su un generoso terrazzo esclusivo ed è dotata di un lussuoso bagno dedicato. A seguire, ci sono due ulteriori camere da letto, ognuna delle quali beneficia di un terrazzino privato, oltre a un terzo bagno completo a servizio del piano.

🔑 Vantaggi Chiave per Chi Cerca una Casa a Conegliano

- Nuova Costruzione: Garanzia di alti standard costruttivi e risparmio energetico.

- Giardino Privato (300 mq): Essenziale per chi cerca spazio esterno a Conegliano.

- Indipendenza Totale: Zero spese condominiali e ingresso privato.

- 4 Locali + Studio: Massima versatilità degli spazi (ideale per famiglie).

Se state valutando l'acquisto di una villa o bifamiliare a Conegliano, non lasciatevi sfuggire questa offerta. Contattateci per ricevere la scheda tecnica completa e organizzare una visita a questa esclusiva vendita villa Conegliano.

Rif. V001562

Le immagini presenti in questo annuncio hanno il solo scopo di illustrare il potenziale estetico dell'immobile in costruzione.
Non costituiscono rappresentazione fotografica della realtà, in quanto l'unità abitativa è di nuova realizzazione e le finiture finali possono variare a seconda del capitolato e delle personalizzazioni scelte in fase d'acquisto.
Caratteristiche principali
Codice
V001567
Città
Conegliano
Categoria
Villa Bifamiliare
Prezzo
554.000 €
Locali
7
Camere
3
Bagni
3
Mq
270
Box
2
Mq Box
44
Posti auto
1
Mq Giardino
290
Terrazzi
3
mq Terrazzo
42
Classe energetica
A4
Stato Immobile
Prossima Realizzazione
Grado
Signorile
Posizione
Centro
Panorama
Vista Aperta
Orientamento
Sud
Lati Liberi
3
Giardino
Privato
Tipo Soggiorno
Salone
Tipo Cucina
A Vista
Riscaldamento
Autonomo
Serramenti
Nuovo
Accesso interno disabili
Parziale
Isolamento
Presente
Isolamento termico
Cappotto esterno
Isolamento acustico
Isolamento completo
Destinato a residenti
Si

Accessori: Antifurto, Aria Condizionata, Cancello Elettrico, Lavanderia, Passaggio Automobilistico, Passaggio Pedonale, Porta Blindata, Tapparelle Elettriche, Tripli Vetri, Video Citofono

Mappa
Via Dina , Conegliano (TV)
Condividi su
Cookie preference